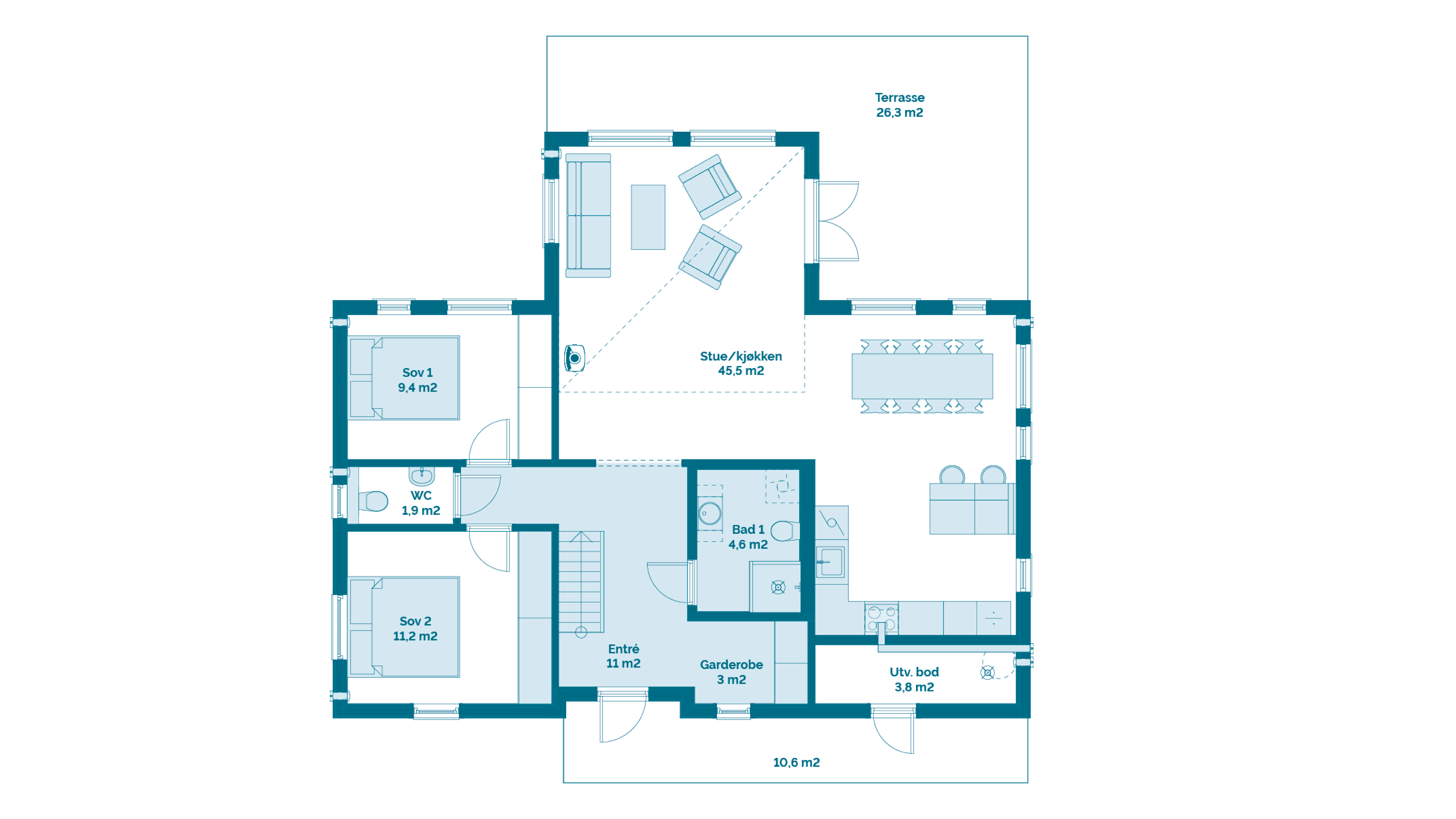
Panoramaet av skog og fjell åpenbarer seg allerede fra den åpne entréen og gjennom de store vinduene i panoramautbygget. Spis frokosten på barkrakken, eller tin opp frosne føtter i badstuen – hytta byr på mange muligheter.

Grunnplan

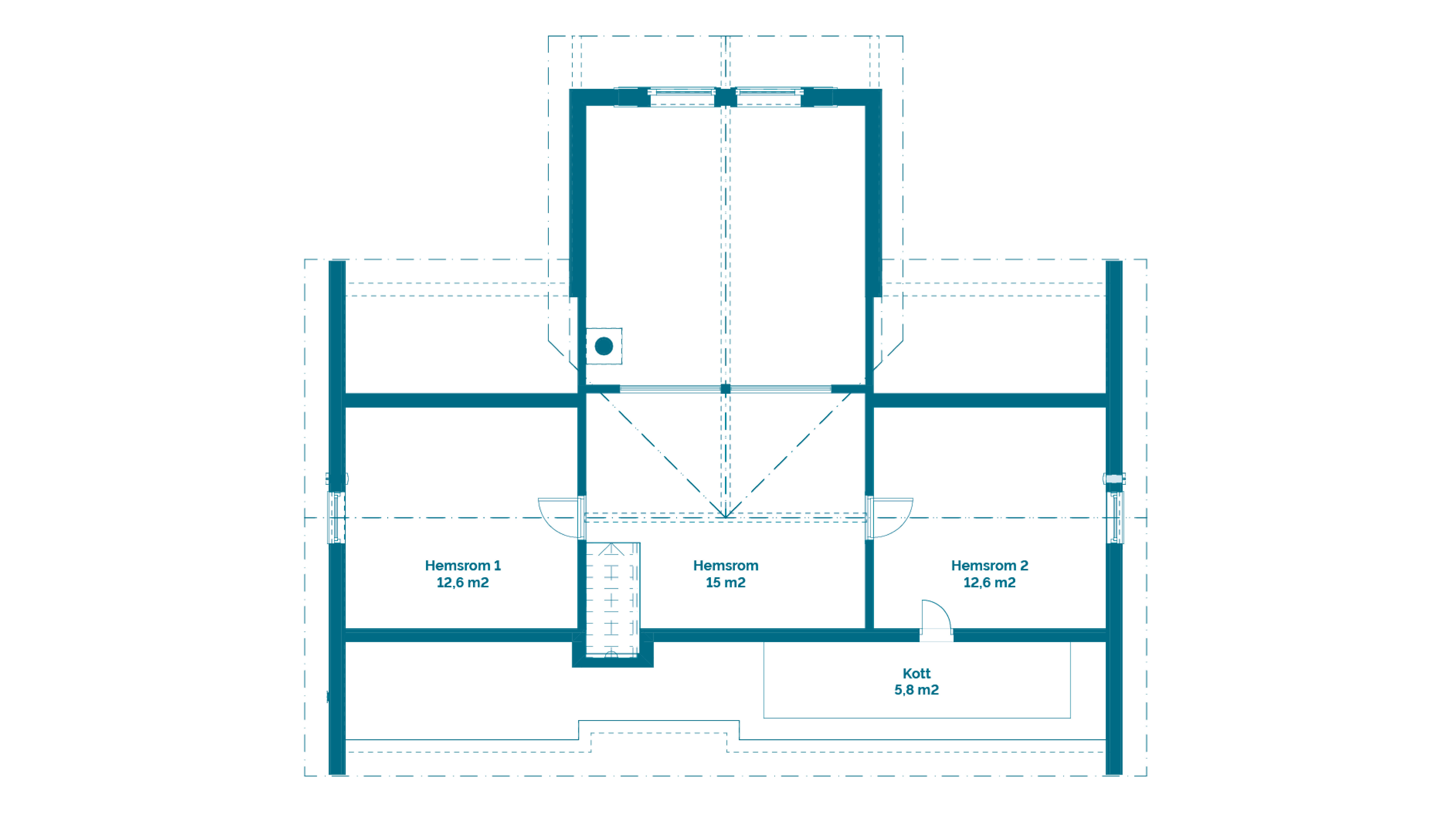
Hems
I disse prisene inngår følgende: Infrastruktur på feltet, eiendomstomt, prosjektering og utforming av byggesøknad, opparbeidelse av tomt med parkering for minimum to biler, støping av grunnmursplate klar for bygging, nøkkelferdig hytte fra våre leverandører og fraktkostnader.
Dette kommer i tillegg: Dokumentavgift på tomt, torvtak, byggestrøm, renovasjon under bygging, støping av striper til terrasser ihht. original hyttetegning, byggesaksgebyr og tilkoblingsavgift til Drangedal kommune. Totalt vil tilleggskostnadene beløpe seg til kr 275.000 +/- 20 %, avhengig av hyttestørrelse og tomtepris.
Innvendig og utvendig overflatebehandling, er ikke inkludert i ovennevnte, da dette er noe mange velger å utføre selv.
Spør oss gjerne om et nøkkelferdig tilbud for en komplett kostnadsoppstilling, med eller uten overflatebehandling inkludert.
Gautefalltomter AS tar forbehold om at ikke alle hytter passer inn på alle tomter, samt trykkfeil og prisendringer fra våre leverandører og/eller myndigheter.
Alle bilder er illustrasjonsbilder og Gautefalltomter tar forbehold om feil i bilder og plantegninger. For nøyaktig informasjon om hyttene, se leverandørens hjemmeside.


